Whatsapp Direkt
WhatsApp Direkt
Senden Sie uns eine Nachricht

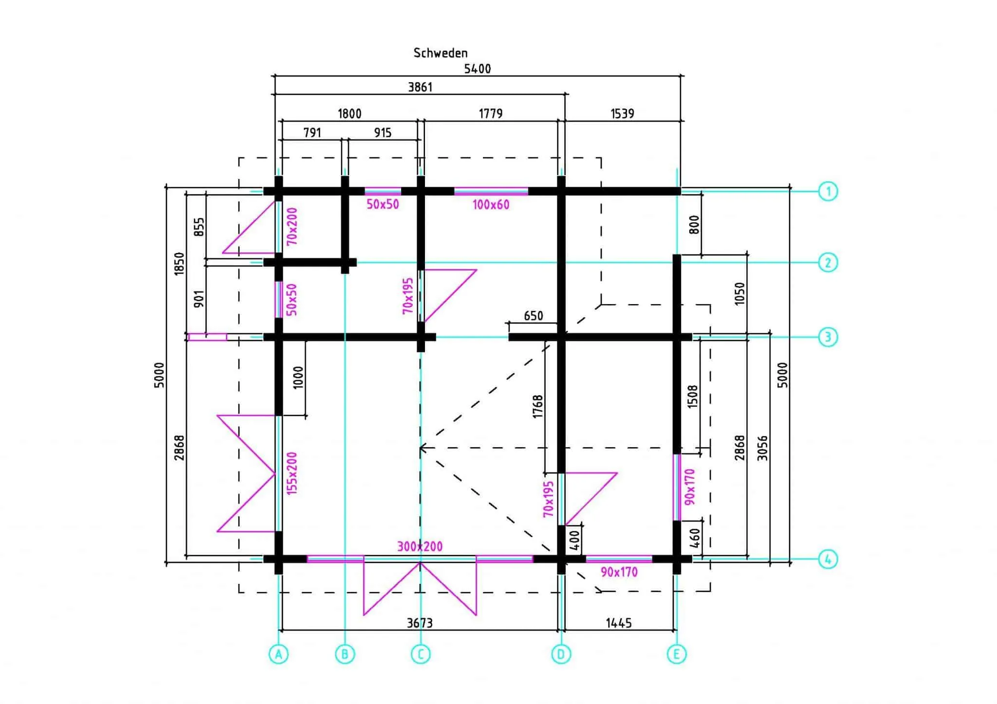
Das Schlafbodenhaus „Schweden“ auf Betana.de ist eine Kunden-Sonderanfertigung, die durch Flexibilität im Design und individuelle Anpassungsmöglichkeiten besticht.
Es bietet ein einzigartiges Wohnerlebnis mit Vorteilen wie einem integrierten Freisitz, der den Außenbereich harmonisch erweitert, und einer gemütlichen, einladenden Atmosphäre.
Die Gestaltung des Hauses orientierte sich hier an speziellen Kundenwünschen.
19. April 2026 11:17
Sie sehen gerade einen Platzhalterinhalt von TrustIndex. Um auf den eigentlichen Inhalt zuzugreifen, klicken Sie auf die Schaltfläche unten. Bitte beachten Sie, dass dabei Daten an Drittanbieter weitergegeben werden.
Mehr Informationen