Whatsapp Direct
WhatsApp Direct
Send us a message

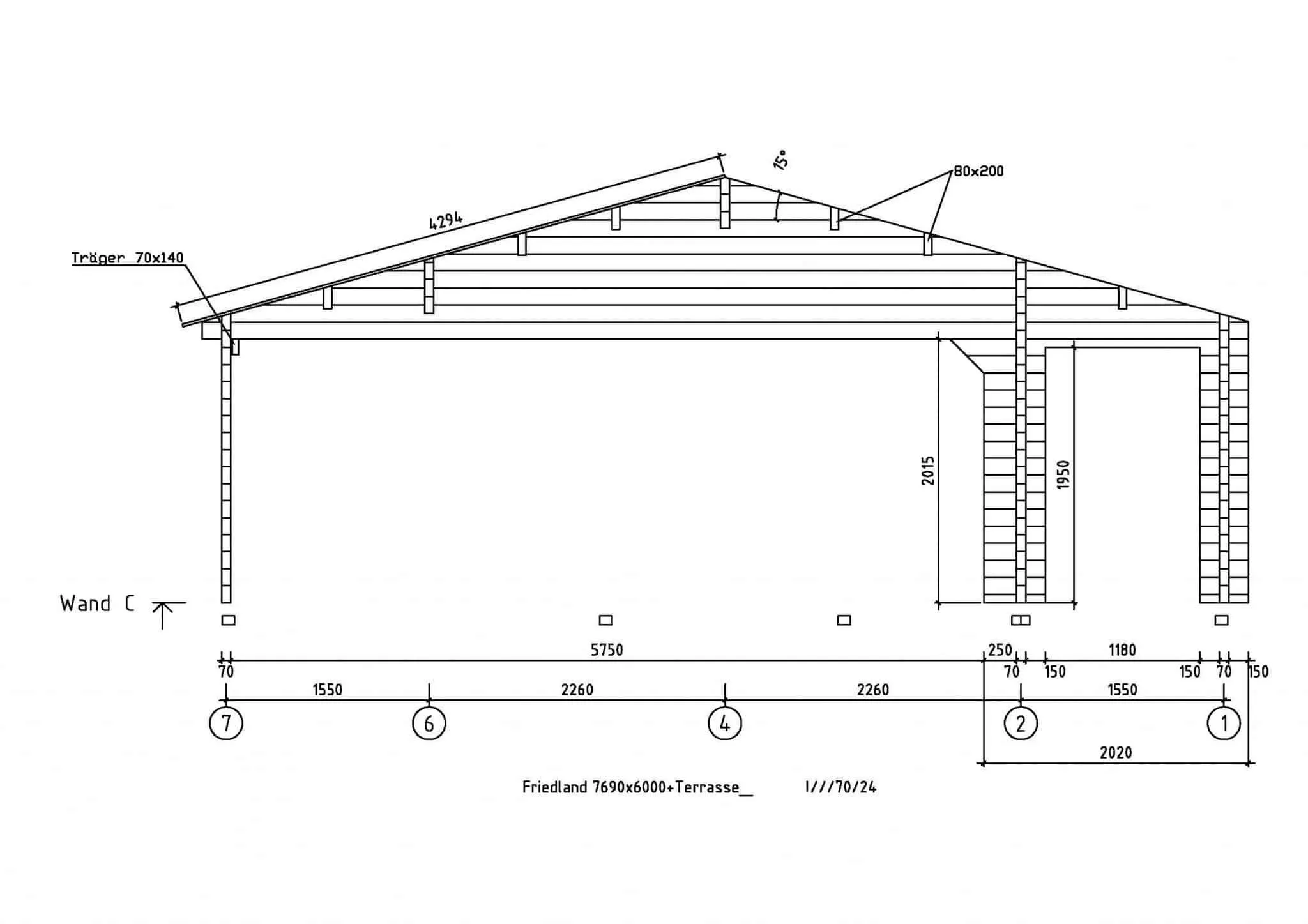
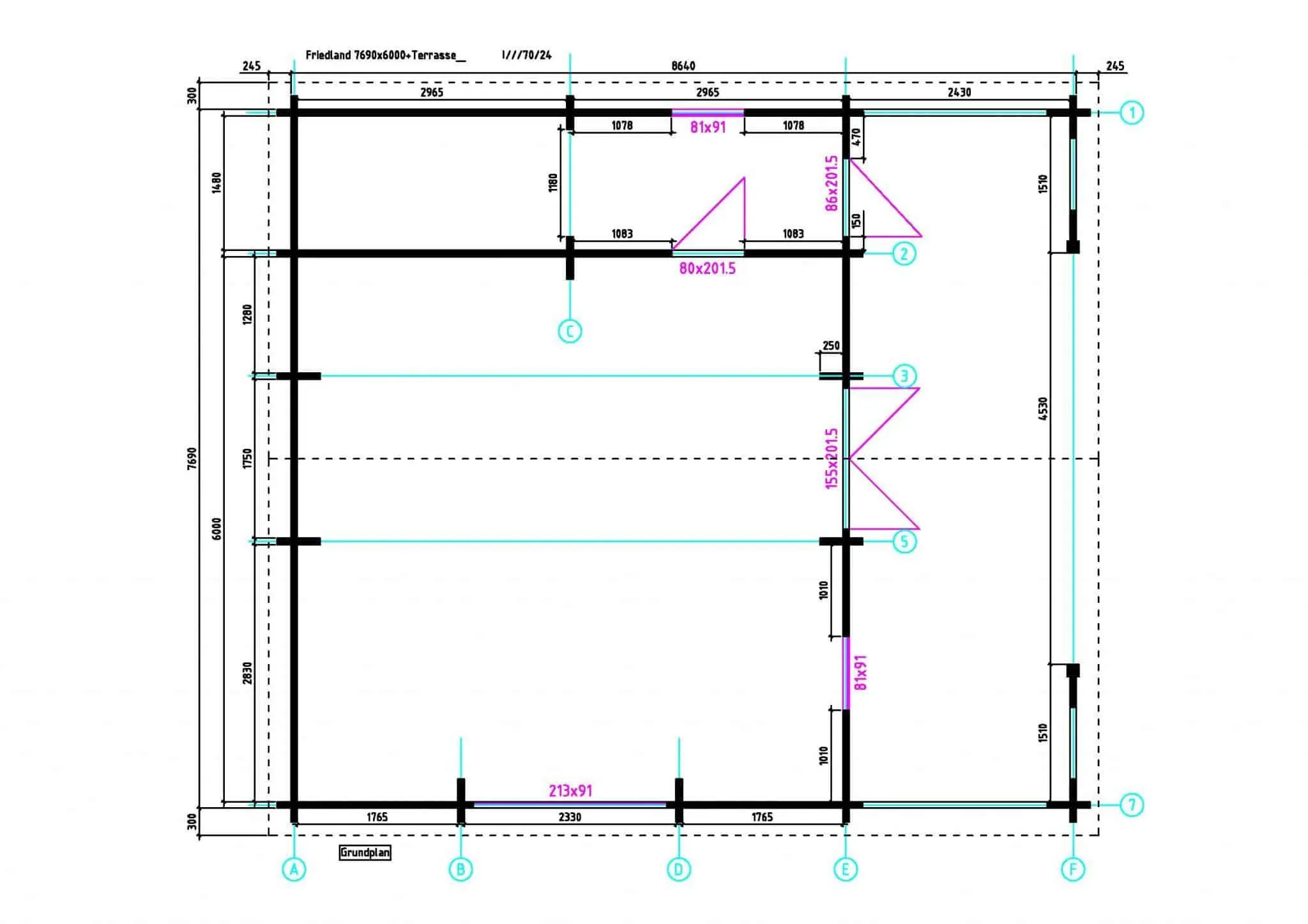
Garden house Friedland special version

This newly built garden house made of high-quality wood has a tastefully designed covered veranda. It stands in a landscape that is currently under development. The foreground has an earthy and muddy texture. The unique rustic charm of this wooden garden shed stands out effortlessly from its rugged surroundings.

Discover the ultimate garden shed Friedland – now in an exclusive special version with terrace! This masterpiece combines functionality with aesthetic elegance and offers the perfect retreat in your garden.

The spacious terrace invites you to relax in the open air, while the robust and stylish design of the garden shed makes a statement in any outdoor area. Whether for cozy summer evenings, as a stylish place for your garden party or as a peaceful oasis for the family, the garden house Friedland with terrace fulfills all wishes.

Let your garden shine with this exquisite addition and enjoy luxury and comfort in your own green space.

Your request

16. February 2026 10:10

This field is for validation purposes and should be left unchanged.
Name(Required)
E-Mail(Required)
If a callback is required