Whatsapp Direct
WhatsApp Direct
Send us a message

Fjord special model 1

Customer ideas
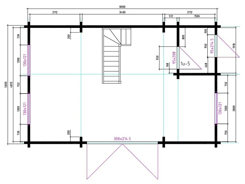
Log cabin Deluxe as baseFjord

Dream Residence Fjord Deluxe: Immerse yourself in a living experience in a class of its own! As soon as you enter the spacious, open-plan living room on the first floor, you will feel the invitation to spend unforgettable moments with family and friends. The majestic four-wing element on the side not only gives the house an imposing aesthetic, but also provides a flood of natural light and opens up impressive views.

The upper floor reveals a masterful interior design: well thought-out partition walls create intimate retreats and at the same time offer space for your creative ideas. It’s not just a house – it’s a masterpiece of architecture that captures the essence of comfort and luxury. Discover one of our most impressive special models: Fjord Deluxe – where dreams are at home!

You will have to go through a planning application procedure for this house.
Please refer to the relevant information on our information sheet on the planning application procedure.

Your request

17. February 2026 7:05

This field is for validation purposes and should be left unchanged.
Name(Required)
E-Mail(Required)
If a callback is required