Whatsapp Direkt
WhatsApp Direkt
Senden Sie uns eine Nachricht

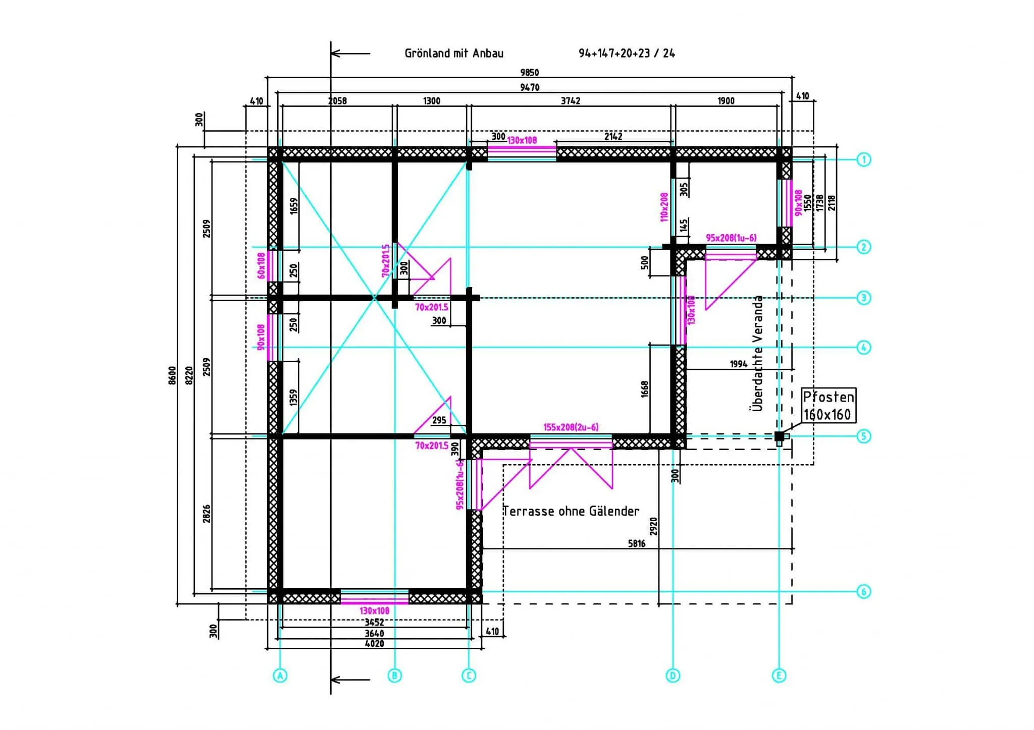
Blockhaus „Grönland“ – Wohnen in skandinavischem Flair

Ein im Bau befindliches Holzblockhaus präsentiert seine Sperrholzwände und Fensteröffnungen. Auf einem Fundament mit Gras und Bäumen im Hintergrund strahlt dieses Haus skandinavisches Flair vor dem bedeckten Himmel aus.

Unser neuestes Kundenprojekt, das Blockhaus „Grönland“, vereint skandinavisches Design mit höchster Qualität in der Verarbeitung. Mit seinem geräumigen Schlafboden und einem funktionalen Anbau ist dieses Modell die perfekte Wahl für Familien, die sich ein gemütliches und zugleich modernes Zuhause wünschen.

Die massive Blockbohlenstärke von 94 mm sorgt für ausgezeichnete Dämmung und Stabilität, ideal für den ganzjährigen Einsatz. 

Der großzügige Schlafboden bietet zusätzlichen Wohnraum und kann als Schlaf- oder Ruhebereich genutzt werden – perfekt für Familien oder Gäste. Der Anbau des Blockhauses „Grönland“ bietet zusätzlichen Platz, der flexibel genutzt werden kann – ob als Wohnraum, Lagerfläche oder Hobbyraum.

Dank der modularen Bauweise lässt sich das Haus an die individuellen Bedürfnisse der Kunden anpassen und erweitert den Gestaltungsspielraum für private und gewerbliche Nutzung.

Ihre Anfrage

15. Dezember 2025 17:05

Dieses Feld dient zur Validierung und sollte nicht verändert werden.
Name(erforderlich)
E-Mail(erforderlich)
Falls Rückruf gewünscht